Floorplans

Explore Belgrave House

Plan your workspace with clear, high-resolution floor layouts for every level.

Download full plan

Total Floor Area

5,032 sq.ft (467.5 sq.m) approx.

Comprehensive multi-level layout of Belgrave House.

Belgrave House — Full floor plan overview
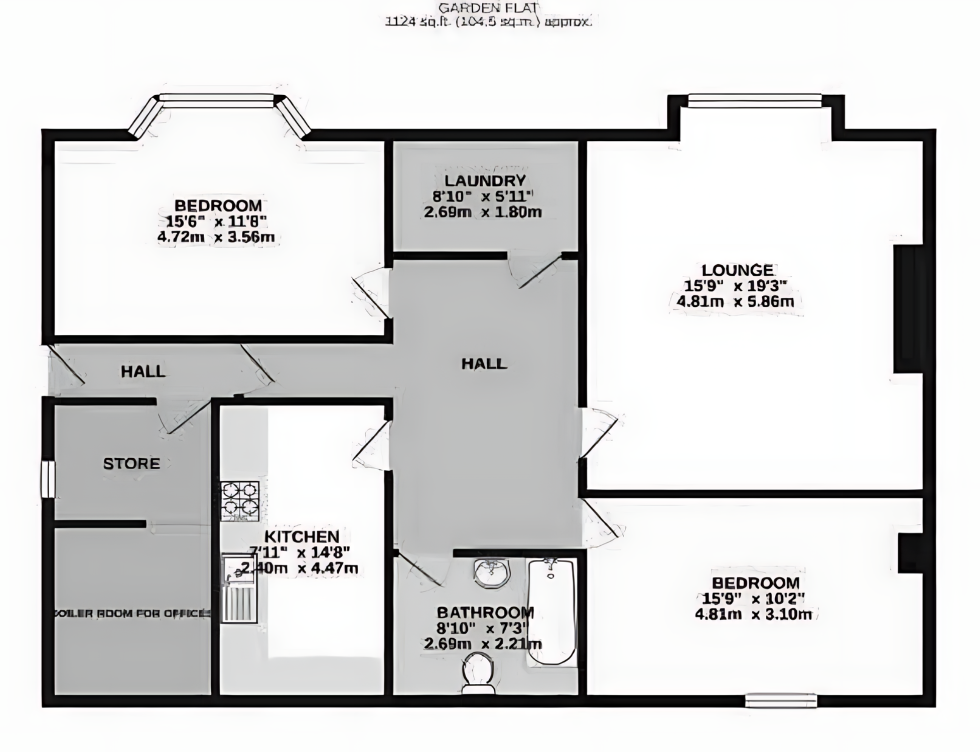
Belgrave House — Garden Flat floor plan
Level

Garden Flat

1,124 sq.ft • 104.5 sq.m approx.

A clear, efficient layout designed for modern teams—adaptable for private offices, collaborative zones, and client-facing areas.

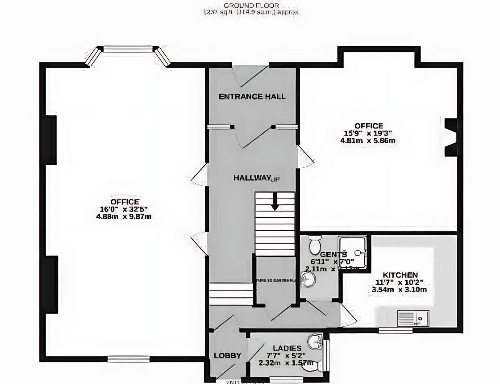
Belgrave House — Ground Floor plan
Level

Ground Floor

1,237 sq.ft • 114.9 sq.m approx.

A clear, efficient layout designed for modern teams—adaptable for private offices, collaborative zones, and client-facing areas.

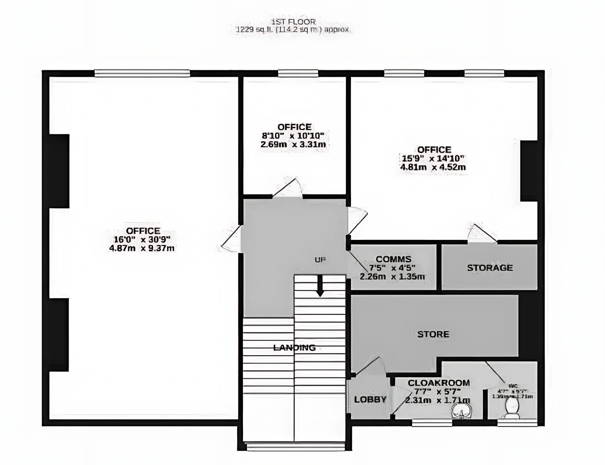
Belgrave House — First Floor plan
Level

First Floor

1,229 sq.ft • 114.2 sq.m approx.

A clear, efficient layout designed for modern teams—adaptable for private offices, collaborative zones, and client-facing areas.

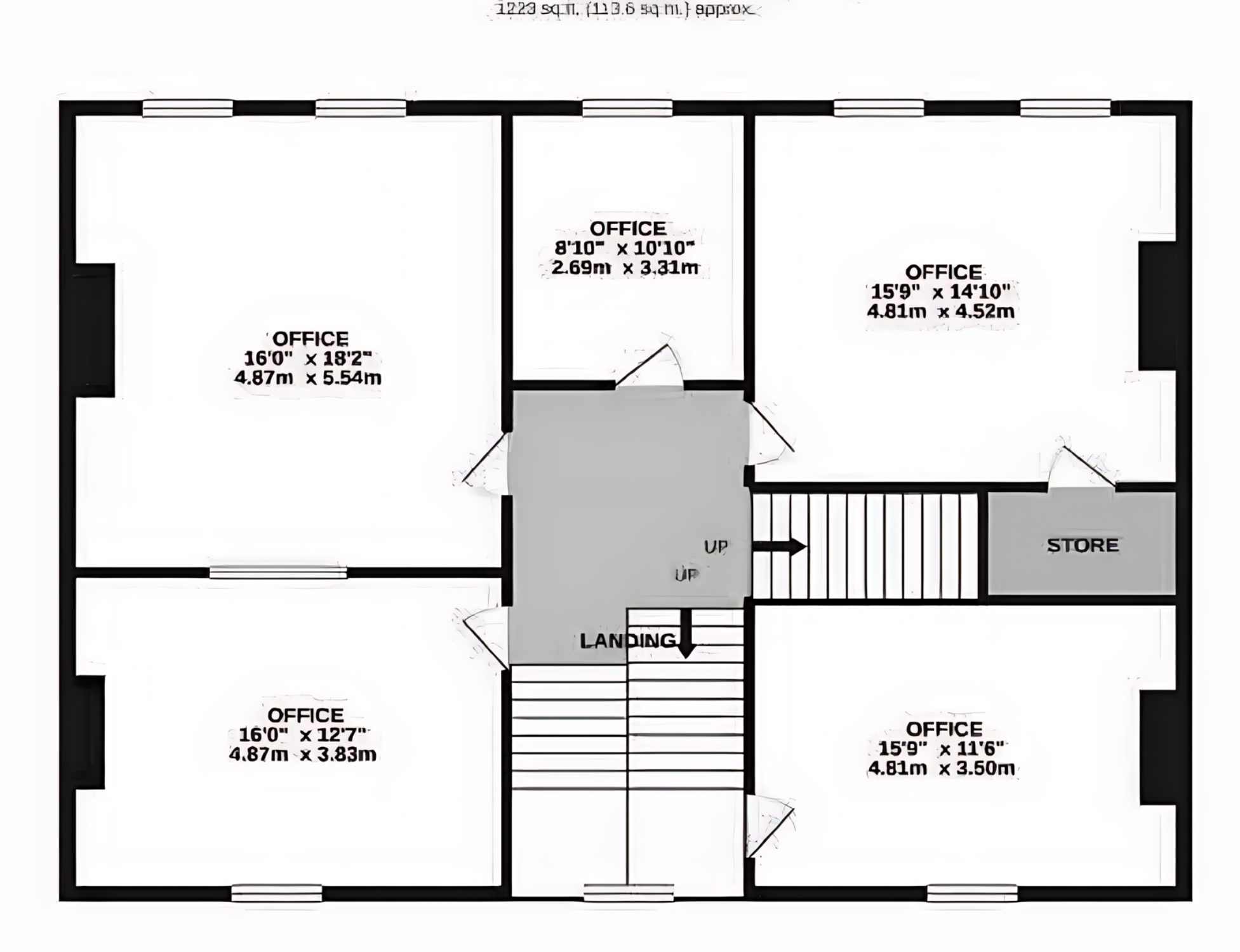
Belgrave House — Second Floor plan
Level

Second Floor

1,223 sq.ft • 113.6 sq.m approx.

A clear, efficient layout designed for modern teams—adaptable for private offices, collaborative zones, and client-facing areas.

Belgrave House — Attic floor plan
Level

Attic

219 sq.ft • 20.3 sq.m approx.

A clear, efficient layout designed for modern teams—adaptable for private offices, collaborative zones, and client-facing areas.

Enquire about availability

Discuss current suites, flexible terms, and tailored options for your team.